Дарья Фролова
0 ∙ 0 отзывов
Офлайн
6 месяцев
На сайте
с октября 2025
Работает в категориях
Описание услуг
Студент последнего курса дизайна интерьера. Большой опыт в создании дизайн интерьера и в ландшафтном дизайне. Есть небольшое портфолио. Ищу новые задания для пополнения портфолио и нового опыта. Хорошо создаю чертежи и хорошо оформляю их.
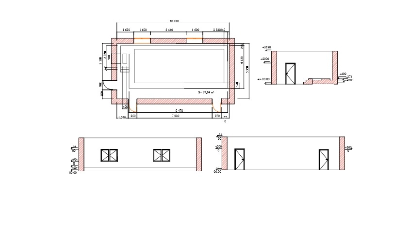
дизайн проект педагогческогоколледжа
небольшая работа по созданию кабинета в педагогческом колледже
Item 1 of 5




