Карина
0 ∙ 0 отзывов
Офлайн
4 месяца
На сайте
с ноября 2025
Работает в категориях
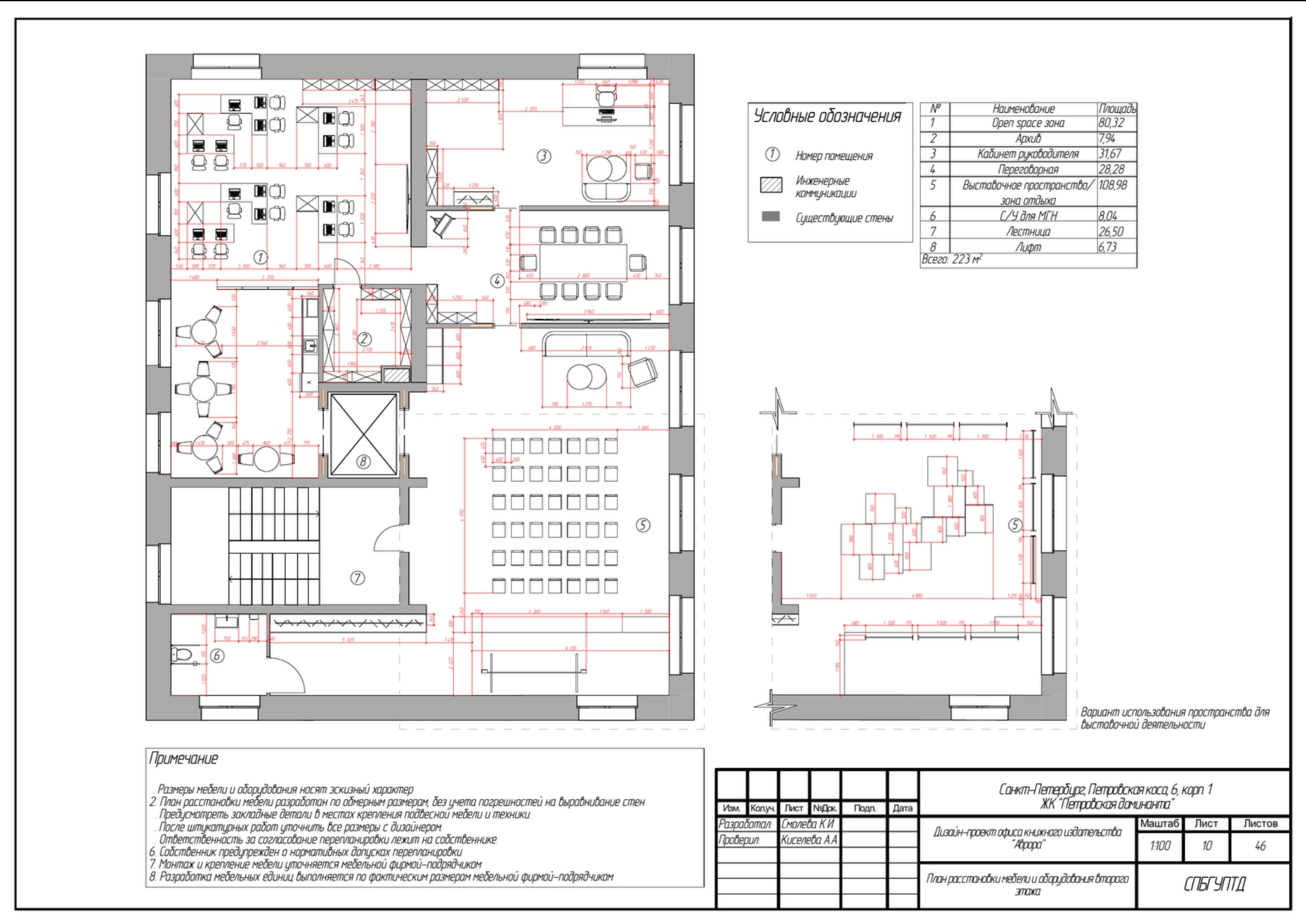
Дизайн проект офиса книжного издательства "Аврора"
Общая информация о проекте:
Год: 2024
Общая площадь: 427 м
Адрес: г. Санкт-Петербург, Петровская коса 6к1 ЖК
«Петровская доминанта»
Концепция:
Центральное экспортное издательство «Аврора» было
организовано в 1968 году на базе Ленинградского
филиала издательства «Советский художник».
Оно выпускает, в том числе на экспорт, историко-
архивные исследования, книги широкого спектра
целевой аудитории, посвященные памятным
юбилейным датам
Цветовое решение офиса соответствует ассоциациям о
искусстве и литературе, нежное и светлое. Первый
этаж полностью отдан под офисные кабинеты разных
подразделений, на верхнем же этаже расположено
пространство для посетителей, где проводятся
выставки, встречи и конференции издательства, также
здесь располагаются кабинеты руководства и
служебное кафе.
Item 1 of 5




