burger
logo
login
avatar
Карина
star 0 ∙ 0 отзывов
Офлайн
4 месяца
На сайте
с ноября 2025

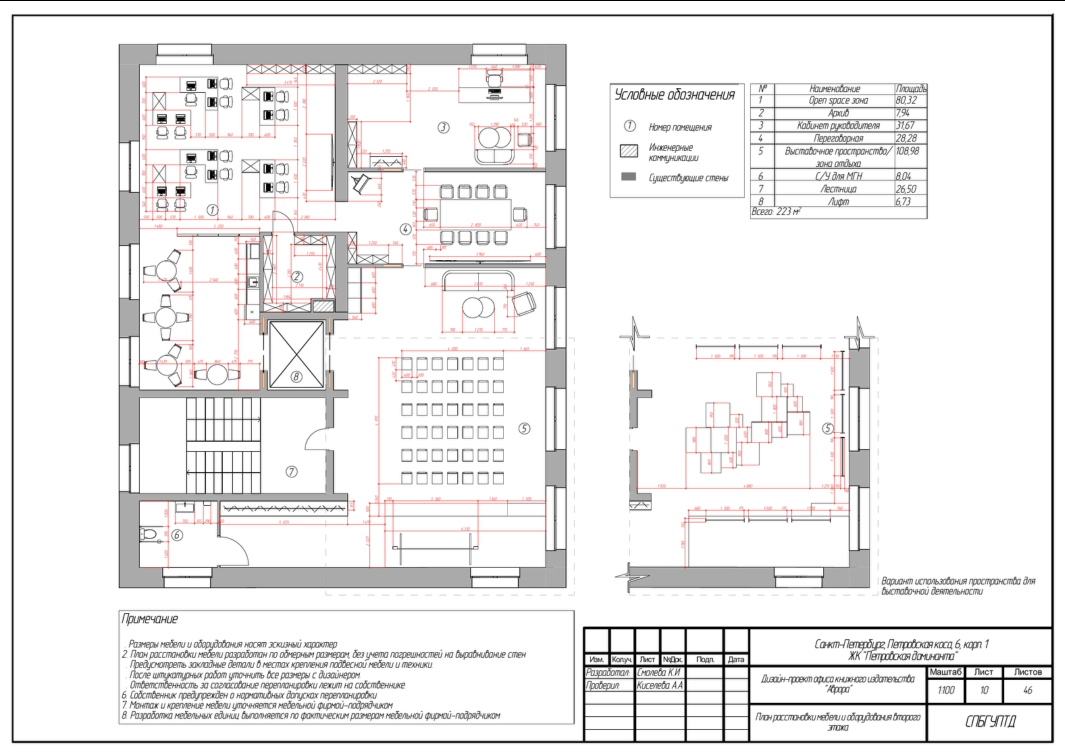
Дизайн проект офиса книжного издательства "Аврора"

Общая информация о проекте: Год: 2024 Общая площадь: 427 м Адрес: г. Санкт-Петербург, Петровская коса 6к1 ЖК «Петровская доминанта» Концепция: Центральное экспортное издательство «Аврора» было организовано в 1968 году на базе Ленинградского филиала издательства «Советский художник». Оно выпускает, в том числе на экспорт, историко- архивные исследования, книги широкого спектра целевой аудитории, посвященные памятным юбилейным датам Цветовое решение офиса соответствует ассоциациям о искусстве и литературе, нежное и светлое. Первый этаж полностью отдан под офисные кабинеты разных подразделений, на верхнем же этаже расположено пространство для посетителей, где проводятся выставки, встречи и конференции издательства, также здесь располагаются кабинеты руководства и служебное кафе.
Назад