Елена Кузьмина
0 ∙ 0 отзывов
Офлайн
1 день
На сайте
с января 2026
Работает в категориях
Описание услуг
Курсы: Офлайн курс Шошин И.В.
https://shoshin.me/study/vladivostok/dizayn-proektirovaniya/kursy-dizayn-interera/
Цель:
Ищу команду, где смогу применять свои знания, полученные в процессе обучения, учиться у профессионалов, развиваться и участвовать в создании интерьеров.
Готова взять на себя задачи по чертежам и визуализации, чтобы сэкономить время старших коллег.
Навыки (Hard Skills):
Программное обеспечение: уверенное владение AutoCAD, 3ds Max + Corona Renderer, Adobe Photoshop
Создание документации: разработка полного пакета рабочих чертежей
Визуализация: создание фотореалистичных 3D-визуализаций интерьеров
Теория дизайна: знание основ композиции, колористики, современных материалов и трендов
Эргономика и планировочные решения
Навыки (Soft Skills):
Инициативность и обучаемость: активное развитие навыков в дизайне интерьеров.
Внимание к деталям
Решение задач
Коммуникабельность и работа в команде
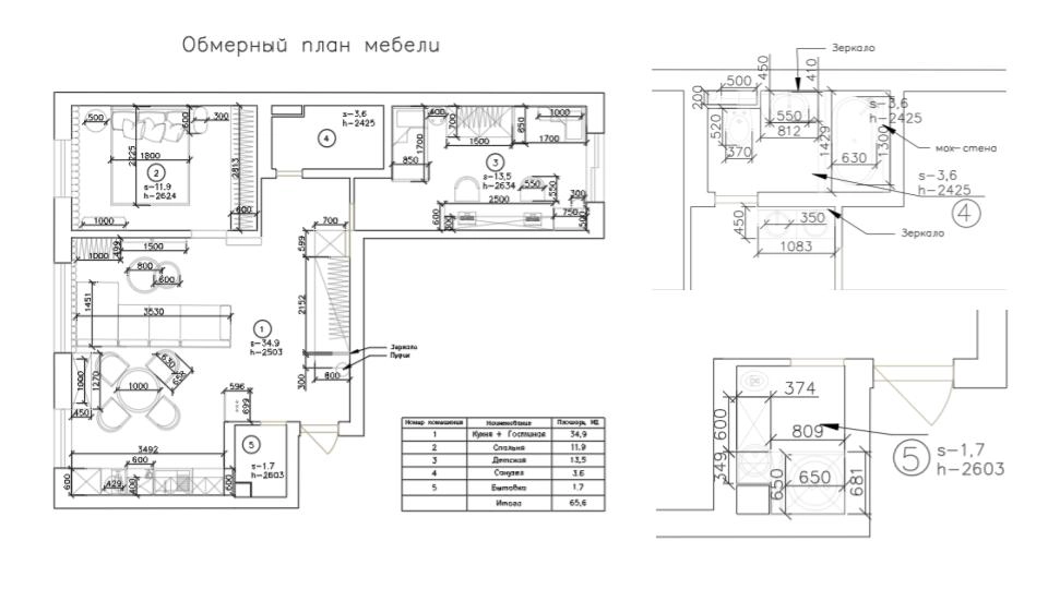
Учебный проект 1: «Комплексный дизайн 3-комнатной квартиры (проект 65м²)»
Детальная проработка жилого пространства для семьи с детьми, с акцентом на функциональность, эргономику и эстетику современного минимализма. Проект демонстрирует умение решать сложные задачи планировки и зонирования.
Ключевые решения по зонам:
Кухня-гостиная: Пространство объединено для создания светлой и объемной зоны отдыха и приема пищи. Применены нейтральная цветовая гамма и интегрированное хранение (кухонный гарнитур до потолка). Особенность — скрытая дверь в спальню, замаскированная реечной панелью.
Мастер-спальня: Для размещения большого шкафа во всю стену была перенесена входная дверь, что позволило максимально эффективно использовать площадь комнаты для хранения и сохранить лаконичный интерьер.
Детская комната: Функциональное зонирование для двоих детей. Предусмотрены два полноценных рабочих места.
Детская зона умывания: Две отдельные раковины вынесены из основного санузла в коридор, что позволило создать независимую зону для одновременного использования детьми по утрам и значительно сэкономить время.
Постирочная: Компактная техническая зона с вертикальным размещением стиральной и сушильной машин, а также скрытыми ящиками и корзинами для хранения.
Санузел: Сочетание керамогранита под темный мрамор и бетон, отдельностоящая овальная ванна и подвесное овальное зеркало на штангах.
Входная зона: Минималистичные встроенные шкафы с гладкими фасадами, большое круглое зеркало с подсветкой и скрытые двери в технические помещения.
Использованные программы: AutoCAD, 3ds Max + Corona, Photoshop.
Item 1 of 2

